A rare opportunity to acquire a substantial 8 bedroom residential holding extending to approximately 5 acres (STMS), positioned in a semi-rural yet well-connected location with clear development and asset-management potential, subject to the necessary planning consents.
A rare opportunity to acquire a substantial 8 bedroom residential holding extending to approximately 5 acres (STMS), positioned in a semi-rural yet well-connected location with clear development and asset-management potential, subject to the necessary planning consents.
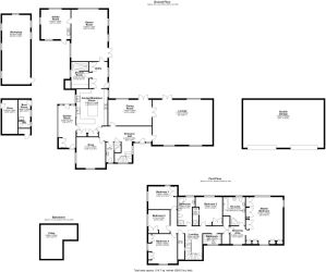
The site currently comprises a circa 6,000 sq ft detached dwelling, a separate two-bedroom self-contained annex, multiple outbuildings and former stables, extensive hardstanding, paddocks and formal gardens. The existing accommodation offers scope for reconfiguration, extension, subdivision or replacement, while the scale of the plot may lend itself to future residential development, executive housing or alternative uses, subject to planning. The annex provides immediate income potential and is available with vacant possession or with tenants in situ.
Located within the established village of Walton Highway, approximately 3 miles from Wisbech and within easy reach of King’s Lynn and the A47/A17 road network, the property combines strategic location, land value and multiple exit strategies. Offered for sale by auction, this is an ideal acquisition for developers, land investors or asset managers seeking a sizeable plot with upside potential in a supply-constrained market..
* Plus 2% Buyers Premium plus VAT
The seller of this property may consider a pre-auction offer prior to the auction date. All auction conditions will remain the same for pre-auction offers which include but are not limited to, the special auction conditions which can be viewed within the legal pack, the Buyer’s Premium, and the deposit. To make a pre-auction offer we will require two forms of ID, proof of your ability to purchase the property and complete our auction registration processes online. To find out more information or to make a pre-auction offer please contact us.
Any additional costs will be listed in the Special Conditions within the legal pack and these costs will be payable on completion. The legal pack is available to download free of charge under the ‘LEGAL DOCUMENTS’. Any stamp duty and/or government taxes are not included within the Special Conditions within the legal pack and all potential buyers must make their own investigations.
We advise all bidders who require a mortgage to confirm with their Financial Advisor as to whether or not the lot you are interested in would be suitable security to borrow finance against, prior to bidding. If you need to arrange a mortgage it is important that you obtain an offer from your lender before the day of the auction. Most building societies and banks will instruct a surveyor to prepare a valuation report before making a mortgage offer.
Non-refundable fees will apply and will be clearly listed on the property details. These fees are paid to reserve the property during the Reservation Period and may take the form of: Reservation Fee – paid by the buyer and in addition to the purchase price. This does not contribute toward the purchase price. Reservation Deposit – paid by the buyer when the seller agrees to cover the fees. This deposit forms part of the purchase price and may be used to cover the auctioneer's fees. Any applicable fee or deposit will be clearly displayed on the property listing at tcpa.co.uk.
We have not carried out a survey or assessment of the property and therefore cannot confirm whether it is suitable for mortgage lending. Mortgage ability is determined solely by the buyer’s chosen lender and their surveyor. It is the buyer’s responsibility to ensure the property is suitable for lending. All prospective bidders should obtain independent advice, arrange their own survey, and confirm mortgage suitability before bidding. No warranty, guarantee, or representation is given or implied regarding the condition of the property or its mortgage suitability. Bidders must rely on their own inspections, enquiries, and professional advice.
Substantial residential holding set within approx. 5 acres (STMS) in a semi-rural location
Circa 6,000 sq ft detached main residence with separate two-bedroom self-contained annex
Significant development and asset-management potential (subject to planning permission)
* The Guide Price given is an indication as to where the Reserve is currently set. The Reserve is the minimum price that the auctioneer is authorised by the vendor to sell the property for. It is subject to change throughout the marketing period. Where the Guide Price is a single figure, the current Reserve will not be more than 10% above that single figure, and where a price range is given (i.e. £50,000 - £55,000), the Reserve will not exceed the upper level of the range. It is not necessarily what the auctioneer expects it will sell for.
We would like to point out that all measurements, floor plans and photographs are for guidance purposes only (photographs may be taken with a wide angled/zoom lens), and dimensions, shapes and precise locations may differ to those set out in these sales particulars which are approximate and intended for guidance purposes only.
These particulars, whilst believed to be accurate are set out as a general outline only for guidance and do not constitute any part of an offer or contract. Intending purchasers should not rely on them as statements of representation of fact, but must satisfy themselves by inspection or otherwise as to their accuracy. No person in this firms' employment has the authority to make or give any representation or warranty in respect of the property.
Viewing: Due to the nature and condition of auction properties, the auctioneers highlight the potential risk that viewing such property carries and advise all to proceed with caution and take necessary requirements to ensure their own safety whist viewing any lots offered. Viewings are conducted entirely at the potential buyers own risk, these properties are not owned or controlled by Town & Country Property Auctions and the auctioneers will not be held liable for loss or injury caused while viewing or accessing the lot. Due to the nature of some auction properties, electricity may not be turned on, therefore viewing times are restricted. Viewers will need to bring their own lighting/ ladders if wanting to inspect cupboards, cellars and roof spaces. Some viewings are carried out by third party agents and we will endeavour to give appropriate notice should the published viewing time change. Town & Country Property Auctions will not be liable for any costs or losses incurred due to viewing cancellations or no shows.
All auctioneer fees and deposits stated are non-refundable. The deposit will be applied toward the final purchase price. Auctioneer fees, while not contributing to the purchase price, will still be included in the total chargeable consideration of the property when calculating Stamp Duty Land Tax, Land Transaction Tax, or Land and Buildings Transaction Tax (as applicable depending on whether the property is located in England, Wales, or Scotland).
By setting a proxy bid, the system will automatically bid on your behalf to maintain your position as the highest bidder, up to your proxy bid amount. If you are outbid, you will be notified via email so you can opt to increase your bid if you so choose.
If two of more users place identical bids, the bid that was placed first takes precedence, and this includes proxy bids.
Another bidder placed an automatic proxy bid greater or equal to the bid you have just placed. You will need to bid again to stand a chance of winning.
By subscribing here you agree to receive relevant emails, news and updates from Town & Country Property Auctions. You can unsubscribe at any time.
No fuss, fast & free*
Town and Country offer a free selling service to a growing number of people choosing to sell their property quickly and easily through auction.
*Contact individual regions for cost
How to bid
Our buying at auction guide will help you throughout the process providing you with guidance to confidently secure your purchase.