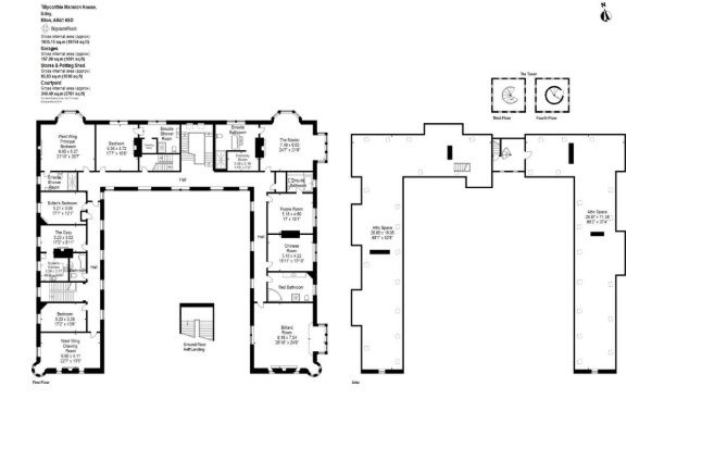
Tillycorthie Mansion House, Udny, Ellon, Aberdeenshire, AB41 6SD

Ref: Lot 5

Loading the bidding panel...

Registration Guide

Finance available on this property

Contact agent


Town & Country Property Auctions North West
Town & Country Property Auctions North West

Unconditional Lot


UNCONDITIONAL LOT Buyers Premium Applies Upon the fall of the hammer, the Purchaser shall pay a 5% deposit and a 5%+VAT (subject to a minimum of £5,000+VAT) buyers premium and contracts are exchanged. The purchaser is legally bound to buy and the vendor is legally bound to sell the Property/Lot. The auction conditions require a full legal completion 28 days following the auction (unless otherwise stated).

Description

The opportunity to acquire a period mansion house 2,184 M2 (Internally) steeped in local history yet only built in 1911 which has been fully refurbished with such meticulous attention to detail is rare indeed. The current owners have purchased it as their family home in the mid ‘90s and lavished much energy, passion and expense to ensure that Tillycorthie Mansion House was reinstated to its former glory.
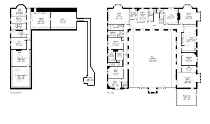
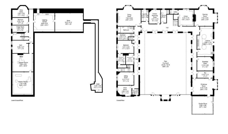
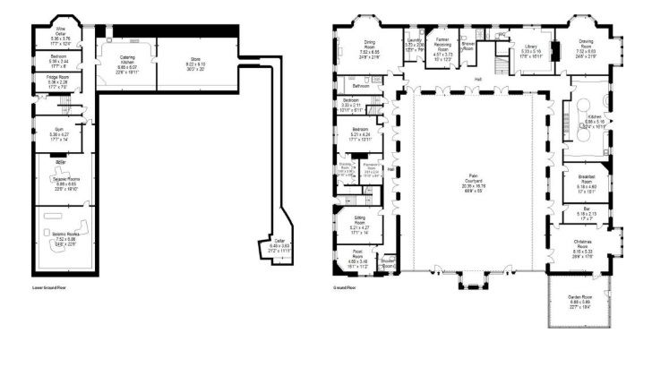
Accessed by a shared private driveway with lawns and lake along either side , A feeling of grandeur is immediately evident on arrival into the Palm Courtyard this exquisite 349M2 space is flooded with natural light from the pitched cantilever style glass roof and offers the most versatile of hosting areas. A number of French doors surround the perimeter allowing a direct flow of access to the main corridors of the ground floor accommodation.
The traditional library has beautiful carved and intricate glass fronted display cases ,with ensuite toilet and walk in safe / gun cabinet. Adorning the north east corner with rear and side facing windows is the elegant drawing room. The heart of the home is the particularly generous dining sized presentation kitchen fitted with an extensive and comprehensive range of luxury bespoke hand made cabinets, complemented by granite work surfaces. Integrated luxury appliances are by Wolf, Sub-zero, Siemens and Fischer and Paykel. The focal point is the elongated curved central island. An informal start to the day is provided through the double doors to an open sitting area. An adjacent breakfast room offers a more formal start while further down the oak lined corridor is the cocktail bar with its striking black and white porcelain tiled floor. Sympathetically retained is The Christmas room which has no less than four points of access. In turn this room leads to the garden room which leads out to the formal gardens.
The ground floor west wing flows seamlessly to the rest of the ground floor and features the former receiving room for guests. This floor is serviced by three bathrooms and a cloakroom. Cornering the north west wing, the formal dining room has a rear facing bay window, and one of three extraordinary floor to ceiling oak fire surrounds. There is a double bedroom with en suite dressing room, a sitting room and most attractive west wing corner front room. Everyday utility tasks are catered for in the laundry room and a nostalgic reminder of times past is the paymaster’s room, which still has evidence of filing and payment drawers.
A grand sweeping staircase leads to the first floor. Located on the east wing is the principal suite, comprising a large and fabulously light double bedroom, thanks to its bay and side windows. There is an en suite dressing room and bathroom with double ended bath and walk in 2 person shower room. There are two further bedrooms one of which is known as the Purple Room with en suite and bathroom and the other known as the Chinese Room with en suite.
The Red Bathroom services the billiard room which is a breathtaking space with a large boxed window with further double window and a corner turret window overlooking the formal garden. Opposite in the west wing is the principal bedroom with rear bay window and en suite shower room with a further adjacent bedroom with en suite shower room. The front facing drawing room with corner window is reached from the main west wing hallway. This wing offers ideal self contained independent space for multi generational living, with a bedroom, butler’s bedroom, butler’s kitchen, informal sitting known as the cosy and bathroom. The entire lower level offers considerable versatile space while remaining partially above ground for natural lighting. As one would expect in a property of this stature the lower ground floor is very well equipped with a preparing/catering kitchen, large store, refrigeration and freezer room, along with a substantial wine cellar. From its previous history of academic use by university students are two Seismic rooms with five original Seismic tables, suitable for further storage while a gym bedroom/office and pistol shooting / archery area completes this level. The loft level of the east and west wings are accessed separately from two different staircases and are fully floored, offering considerable storage space and games room etc. A spiral stairway from the east wing leads up into the external tower space for a roof top vista of the surrounding countryside. Location Situated in the parish of Udny, 3 miles south of Pitmedden and 11 miles north of Aberdeen, and about 6 miles from the new Western Peripheral Route, Tillycorthie Mansion House sits to the south of Udny Station within a magnificent gated and walled estate. Surrounding the property within a few miles are several castles / shooting / fishing estates and world class golf courses including Trump International GC.

Tenure

Freehold

Buyers Premium

* Plus 5% Buyers Premium + VAT

Pre Auction Offers Are Considered

The seller of this property may consider a pre-auction offer prior to the auction date.  All auction conditions will remain the same for pre-auction offers which include but are not limited to, the special auction conditions which can be viewed within the legal pack, the Buyer’s Premium, and the deposit.  To make a pre-auction offer we will require two forms of ID, proof of your ability to purchase the property and complete our auction registration processes online.  To find out more information or to make a pre-auction offer please contact us.

Special Conditions

Any additional costs will be listed in the Special Conditions within the legal pack and these costs will be payable on completion. The legal pack is available to download free of charge under the ‘LEGAL DOCUMENTS’.  Any stamp duty and/or government taxes are not included within the Special Conditions within the legal pack and all potential buyers must make their own investigations.

Key Feature 1

Category B Listed

Key Feature 2

Oil fired central heating

Key Feature 3

Residential/commercial opportunities

Council Tax Band

H


* The Guide Price given is an indication as to where the Reserve is currently set. The Reserve is the minimum price that the auctioneer is authorised by the vendor to sell the property for. It is subject to change throughout the marketing period. Where the Guide Price is a single figure, the current Reserve will not be more than 10% above that single figure, and where a price range is given (i.e. £50,000 - £55,000), the Reserve will not exceed the upper level of the range. It is not necessarily what the auctioneer expects it will sell for.

We would like to point out that all measurements, floor plans and photographs are for guidance purposes only (photographs may be taken with a wide angled/zoom lens), and dimensions, shapes and precise locations may differ to those set out in these sales particulars which are approximate and intended for guidance purposes only.

These particulars, whilst believed to be accurate are set out as a general outline only for guidance and do not constitute any part of an offer or contract. Intending purchasers should not rely on them as statements of representation of fact, but must satisfy themselves by inspection or otherwise as to their accuracy. No person in this firms' employment has the authority to make or give any representation or warranty in respect of the property.

Viewing: Due to the nature and condition of auction properties, the auctioneers highlight the potential risk that viewing such property carries and advise all to proceed with caution and take necessary requirements to ensure their own safety whist viewing any lots offered. Viewings are conducted entirely at the potential buyers own risk, these properties are not owned or controlled by Town & Country Property Auctions and the auctioneers will not be held liable for loss or injury caused while viewing or accessing the lot. Due to the nature of some auction properties, electricity may not be turned on, therefore viewing times are restricted. Viewers will need to bring their own lighting/ ladders if wanting to inspect cupboards, cellars and roof spaces. Some viewings are carried out by third party agents and we will endeavour to give appropriate notice should the published viewing time change. Town & Country Property Auctions will not be liable for any costs or losses incurred due to viewing cancellations or no shows.

All auctioneer fees and deposits stated are non-refundable. The deposit will be applied toward the final purchase price. Auctioneer fees, while not contributing to the purchase price, will still be included in the total chargeable consideration of the property when calculating Stamp Duty Land Tax, Land Transaction Tax, or Land and Buildings Transaction Tax (as applicable depending on whether the property is located in England, Wales, or Scotland).

Loading legal documents ...

Register for auction alerts

By subscribing here you agree to receive relevant emails, news and updates from Town & Country Property Auctions. You can unsubscribe at any time.

Register for auction alerts

Selling

No fuss, fast & free*

Town and Country offer a free selling service to a growing number of people choosing to sell their property quickly and easily through auction.

*Contact individual regions for cost

Buying

How to bid

Our buying at auction guide will help you throughout the process providing you with guidance to confidently secure your purchase.