Holmleigh, Golf Links Road, Westward Ho, Bideford, Devon, EX39 1HH

Ref: Lot 34

Loading the bidding panel...

Registration Guide

Finance available on this property

Contact agent


Town & Country Property Auctions North West
Town & Country Property Auctions North West

Unconditional (Buyer's Premium)


UNCONDITIONAL LOT Buyers Premium Applies Upon the fall of the hammer, the Purchaser shall pay a 5% deposit and a 5%+VAT (subject to a minimum of £5,000+VAT) buyers premium and contracts are exchanged. The purchaser is legally bound to buy and the vendor is legally bound to sell the Property/Lot. The auction conditions require a full legal completion 28 days following the auction (unless otherwise stated).

Description

Unique Self-Build Opportunity with Planning Permission to be Sold via Auction 29th October 2025

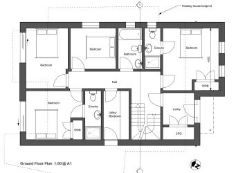
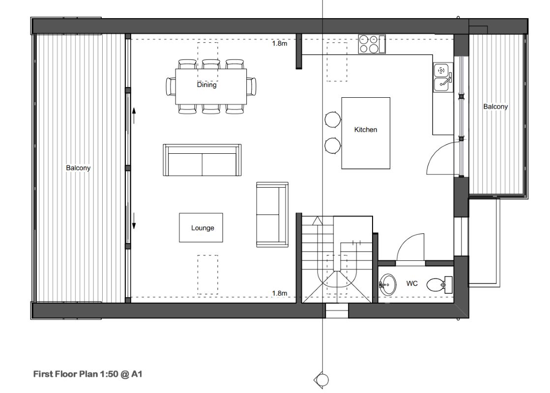
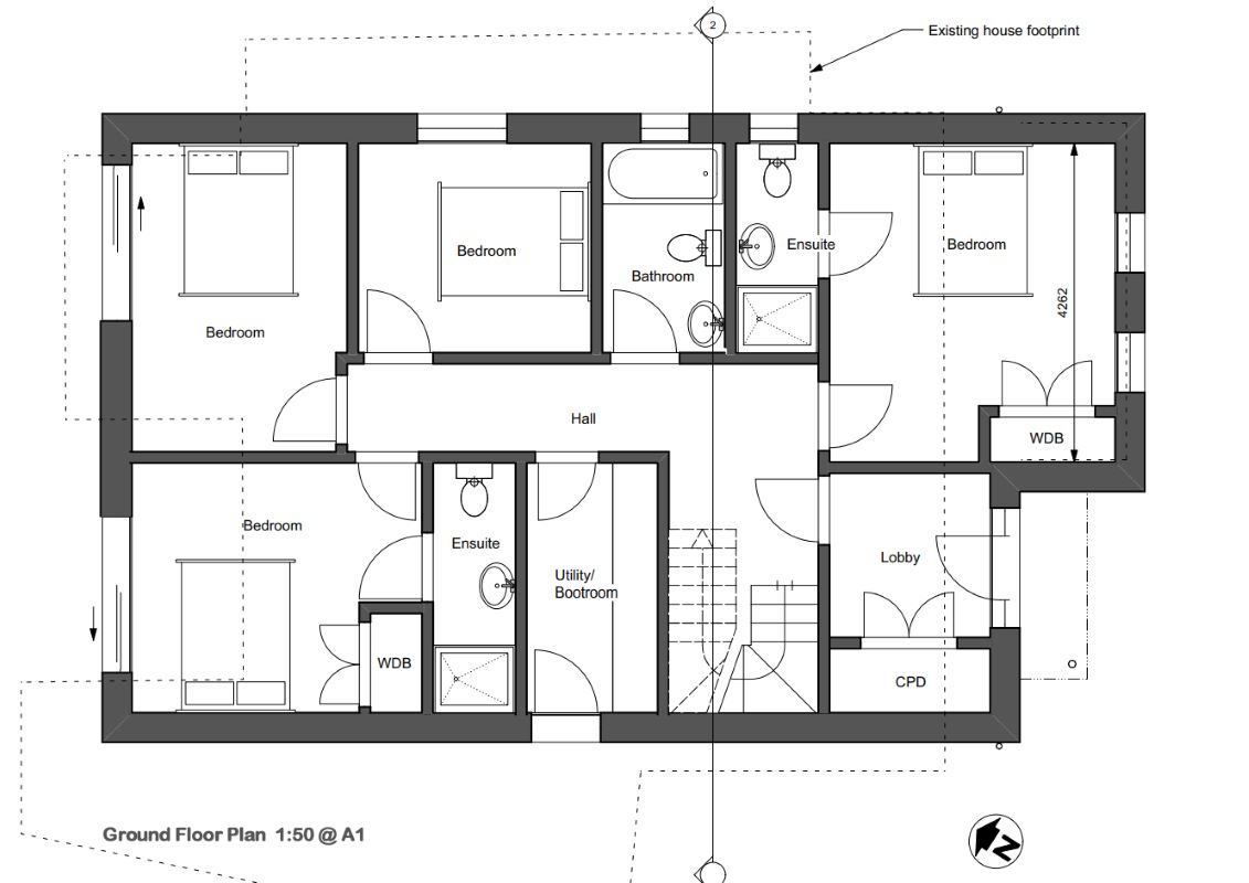
The property comes with full planning consent, granted in May 2023 and valid until May 2026, to demolish and replace the current home with a contemporary reverse-level four-bedroom, three-bathroom house with balconies designed to maximise the exceptional coastal views. This is a rare opportunity in a prime location just a stone’s throw from the beach and close to all village amenities.

As a Bungalow, Holmleigh, enjoys stunning sea views and is ideally located just a short, level walk from the heart of Westward Ho!, the beach, and Northam Burrows. Tucked away off Golf Links Road behind private gates, the property offers generous off-road parking and spacious, flexible accommodation throughout. Inside, a bright lounge and additional reception room overlook the front, while a large dining room and conservatory face the rear garden, creating an ideal setting for entertaining. The modern kitchen includes ample storage and leads to a utility/boot room and an extra rear-facing reception space. The ground floor also benefits from a useful shower room.

Upstairs, there are two double bedrooms with elevated views, including one with a built-in shower and panoramic outlooks over the coastline. A separate WC is located off the landing. Outside, the low-maintenance rear garden features two Astro-Turfed areas, enclosed and bordered by mature shrubs and flowers.

This property is just a short stroll from both the heart of the village and the stunning sandy beach. Westward Ho!—named after the famous novel by Charles Kingsley—is a distinctive seaside village on the North Devon coast. Known for its sweeping, two-mile stretch of golden sand backed by the iconic pebble ridge, the beach consistently earns Blue Flag status, making it a favourite for families, surfers, and holidaymakers alike.

The village offers a charming mix of local shops, convenience stores, cafés, pubs, and restaurants. It is also home to the renowned Royal North Devon Golf Club. With its scenic coastal paths, breathtaking views, and lively seaside atmosphere, Westward Ho! stands out as one of North Devon’s premier coastal destinations. Nearby, the picturesque villages of Appledore—with its deep maritime heritage—and Instow, a much-loved tourist spot, further enhance the area’s appeal.

Just a short drive away, the historic port town of Bideford offers a broader range of amenities including independent shops, bistros, banks, a post office, secondary schools, and supermarkets. From Bideford, the A39 provides easy access to Barnstaple, where you’ll find extensive high street shopping and the Tarka Line train service to Exeter. The A39 also connects to the A361, leading to Tiverton and a direct rail link to London Paddington. Head west from Bideford and you’ll reach Bude, a popular gateway to the scenic North Cornwall coast.

Buyers Premium

* Plus 5% Buyers Premium + VAT

Pre Auction Offers Are Considered

The seller of this property may consider a pre-auction offer prior to the auction date.  All auction conditions will remain the same for pre-auction offers which include but are not limited to, the special auction conditions which can be viewed within the legal pack, the Buyer’s Premium, and the deposit.  To make a pre-auction offer we will require two forms of ID, proof of your ability to purchase the property and complete our auction registration processes online.  To find out more information or to make a pre-auction offer please contact us.

Special Conditions

Any additional costs will be listed in the Special Conditions within the legal pack and these costs will be payable on completion. The legal pack is available to download free of charge under the ‘LEGAL DOCUMENTS’.  Any stamp duty and/or government taxes are not included within the Special Conditions within the legal pack and all potential buyers must make their own investigations.

Key Feature 1

Detached Property With Planning Consent For 4 Bed, 3 Bath New Build

Key Feature 2

Unique Self-Build Opportunity

Key Feature 3

Full Planning Consent


* The Guide Price given is an indication as to where the Reserve is currently set. The Reserve is the minimum price that the auctioneer is authorised by the vendor to sell the property for. It is subject to change throughout the marketing period. Where the Guide Price is a single figure, the current Reserve will not be more than 10% above that single figure, and where a price range is given (i.e. £50,000 - £55,000), the Reserve will not exceed the upper level of the range. It is not necessarily what the auctioneer expects it will sell for.

We would like to point out that all measurements, floor plans and photographs are for guidance purposes only (photographs may be taken with a wide angled/zoom lens), and dimensions, shapes and precise locations may differ to those set out in these sales particulars which are approximate and intended for guidance purposes only.

These particulars, whilst believed to be accurate are set out as a general outline only for guidance and do not constitute any part of an offer or contract. Intending purchasers should not rely on them as statements of representation of fact, but must satisfy themselves by inspection or otherwise as to their accuracy. No person in this firms' employment has the authority to make or give any representation or warranty in respect of the property.

Viewing: Due to the nature and condition of auction properties, the auctioneers highlight the potential risk that viewing such property carries and advise all to proceed with caution and take necessary requirements to ensure their own safety whist viewing any lots offered. Viewings are conducted entirely at the potential buyers own risk, these properties are not owned or controlled by Town & Country Property Auctions and the auctioneers will not be held liable for loss or injury caused while viewing or accessing the lot. Due to the nature of some auction properties, electricity may not be turned on, therefore viewing times are restricted. Viewers will need to bring their own lighting/ ladders if wanting to inspect cupboards, cellars and roof spaces. Some viewings are carried out by third party agents and we will endeavour to give appropriate notice should the published viewing time change. Town & Country Property Auctions will not be liable for any costs or losses incurred due to viewing cancellations or no shows.

Loading legal documents ...

Register for auction alerts

By subscribing here you agree to receive relevant emails, news and updates from Town & Country Property Auctions. You can unsubscribe at any time.

Register for auction alerts

Selling

No fuss, fast & free*

Town and Country offer a free selling service to a growing number of people choosing to sell their property quickly and easily through auction.

*Contact individual regions for cost

Buying

How to bid

Our buying at auction guide will help you throughout the process providing you with guidance to confidently secure your purchase.